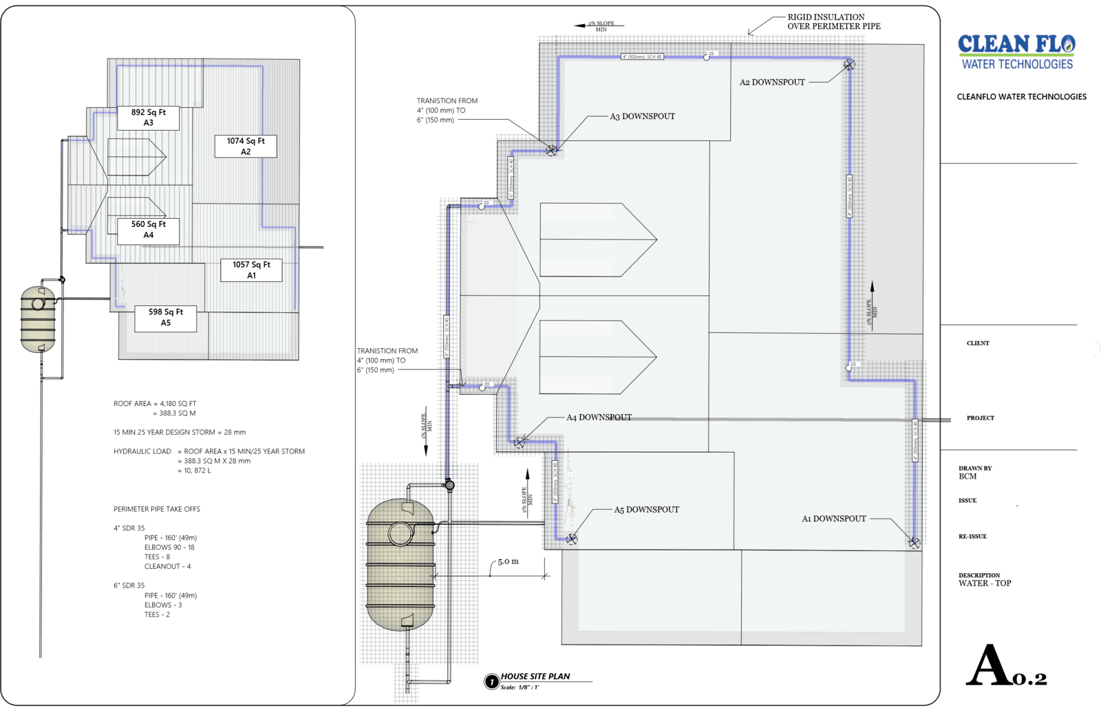
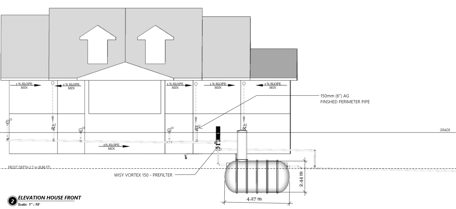
In March of 2016 a customer building a new family home on a rural property near Caron, Saskatchewan approached Cleanflo to design and install a rainwater harvesting system and a septic system. The home’s roof area was to be almost 3,400 square feet, and the customer wanted to collect from the entire area.This is the water-in part of our equation. Given that this project was a new build, our customer provided water bills from their existing residence, and we assumed that their water usage would remain relatively stable; including the following fixtures: toilets, laundry, dishwasher, faucets, showers, and irrigation. The estimate we used was 404 litres per day in the winter, and 893 litres per day in the summer, which is about 200 cubic meters of water annually; this will serve as our basis for water-out when generating our hydro-logical model.
Saskatchewan Rainwater Harvesting - Alternative to a Well
Want to build your own system? Looking for water harvesting UV's, tanks, pumps or parts? Check out our Store!!

Drilling a Well VS Rainwater
Pay Back Period
Originally Published In Storm Water Solution



